Охранная сигнализация
Главное назначение охранной сигнализации состоит в оперативном и гарантированном извещении охраны объекта и/или правоохранительных служб о несанкционированном проникновении в охраняемые помещения. Решение данной задачи возможно только при грамотном оснащении объекта охраны современными высоконадежными техническими средствами охранной сигнализации или комплексных систем безопасности.

Охранная сигнализация может быть автономной – цель такой сигнализации отпугнуть злоумышленников и оповестить соседей с применением мощных сирен. Но наибольший эффект от охранной сигнализации достигается при подключении ее на пульт вневедомственной охраны или на пульт централизованного наблюдения частного охранного предприятия. При использовании для передачи тревожных сообщений GSM-систем возможна передача тревожных сообщений на сотовые телефоны владельцев охраняемого объекта.
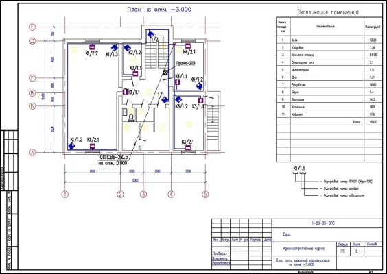
Системы охранной сигнализации своевременно оповестят Вас о несанкционированном проникновении на охраняемую территорию и сообщат об аварийных ситуациях. Кроме того, при проникновении внутрь Вашего жилища или офиса система может сообщить Вам о тревоге телефонным звонком на указанный заранее номер. Для съёма информации служат датчики (инфракрасные и радиоволновые датчики движения, магнитные датчики открытия дверей и окон, акустические датчики разбития стекла, датчики удара и т.д.), а базовым блоком - контрольные панели, на которые сводится вся информация от датчиков.
Правильно составленная спецификация на современном комбинированном оборудовании поможет предусмотреть все тревожные ситуации охраняемого объекта, и обезопасит Ваше имущество и персонал. Система с помощью специальных датчиков может отследить протечку воды и утечку газа, и по заранее введённой программе отдать команду исполнительным устройствам комплексной системы управления и охраны на выполнение того или иного действия (перекрыть кран, включить сирену и т.п.). Системы периметральной сигнализации берут под охрану не только помещение, но и прилегающую территорию по периметру.
Цифровые компьютерные системы выводят на экран графический план охраняемого объекта и состояние каждого датчика. С компьютера можно также ставить систему на охрану и снимать с режима охраны. Охранная сигнализация в комплексе с системами теленаблюдения создадут надёжный щит от злоумышленников и форс-мажорных ситуаций.
Самый лучший способ сэкономить средства, не экономя на безопасности – это доверить этап оснащения объекта охранной сигнализацией специалистам в этой области. ООО «Драйвер» уже много лет занимается проектированием и монтажом систем охранной сигнализации в Мордовии, и мы рады предложить Вам свои услуги.






